{{curreentCase.CaseSelected.Header}}

Bringing light and wellbeing using skylights to communal areas at Strawberry Field visitor centre

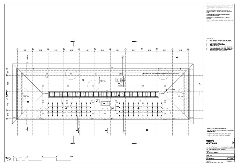
Forty two VELUX Longlights have been installed as part of an innovative lighting and ventilation strategy at the new Strawberry Field visitor centre and young adults’ training hub in Liverpool.

Fundamental to the design of the centre were two requirements: to create a bright, natural ambience throughout this flat-roofed building and to ensure that the internal spaces remained well-ventilated for both visitors and trainees.

Hoskins Architects, in partnership with Robertson Construction North West, designed the building to maximise the views and the physical connections to the mature “park” setting. The 1350m2, two-storey building has been set into the site’s embankment and has been clad in natural timber and brick to blend in with the wooded areas in the surrounding landscape.

  • The VELUX Longlights, each measuring 900mm x 1400mm, create a central “spine” running the entire length of the building, bathing the spaces below with natural daylight and giving beautiful sky views
  • Floor to ceiling vertical glazing further connects the centre’s visitors to nature, providing pleasant views out towards the garden
  • The architect specified low g-value glazing to reduce the thermal overheating as well as fourteen ventilating modules as part of the natural ventilation strategy for the building
  • The skylights helped define the public route through the building from café and exhibition space to the toilets and training centre end of the building

Prosjektinformasjon


{{property.PropertyName}}

{{pValue.PropertyValue}}

Arkitekttegninger

Produkter som ble brukt i prosjektet

1 x pultlys

Pultlys 5–30°

En løsning med ensidig helning som er ideell for flate tak

Illustration of Longlight solution Les mer

Antall moduler: 42

Pultlys 5–30°

En løsning med ensidig helning som er ideell for flate tak

Illustration of Longlight solution Les mer

Cameron Burt

Hoskins Architects

The modular nature of the VELUX Modular Skylight system “made it easy to work with and design with during the early technical design phases” said Cameron Burt, architect on the project. “We had worked with the product on other projects within the office so we had a good working knowledge of the benefits the system brings. The modular nature combined with flexibility and clean aesthetic meant it had strong advantages over market competitors.”

Cameron Burt

Hoskins Architects

We had excellent early engagement with the VELUX Commercial technical team (Wai Cheung Specification Development Manager in particular) that helped us work through the detailing aspects, and understand and identify any issues early on in the process.

Improved flexibility and efficiency using modular skylights

The VELUX Longlights, which had been pre-fabricated and tested at the factory, were quickly and easily installed by specialist fitters, Cubic Facades, within 48 hours of delivery to site.

Modulsystemet

Modulsystemet

Finn ut mer om modularitet, de viktigste fordelene og samarbeidet vårt med Foster + Partners.

Utforsk det modulære systemet
Prosjektsupport for overlysmoduler

Vi sitter klare til å hjelpe deg

Overlysspesialistene våre sitter klare til å gi deg råd gjennom hele prosessen fra design til montering.

Få prosjektrådgivning

Andre referanser